Opis nieruchomości:
O NIERUCHOMOŚCI
Nowoczesny dom w Błoniach Wilanowskich – ul.Mango – 280 m² w stanie deweloperskim z możliwością wykończenia wnętrz pod klucz.
Wyjątkowy segment skrajny w prestiżowej lokalizacji, sprzedawany z gotowym projektem wnętrz i ogrodu (możliwość wykończenia domu pod pod klucz, renomowani wykonawcy z nadzorem architektonicznym).
Dom wyróżnia się wysoką jakością – gruntowa pompa ciepła, rekuperacja, ogrzewanie podłogowe w całym budynku, duże aluminiowe okno HS i elewacja z naturalnego drewna.
Funkcjonalny układ z master suite, ogrodem, tarasem i garażem na dwa auta dopełnia całości. Idealne połączenie designu, komfortu i nowoczesnych technologii.
UKŁAD POMIESZCZEŃ
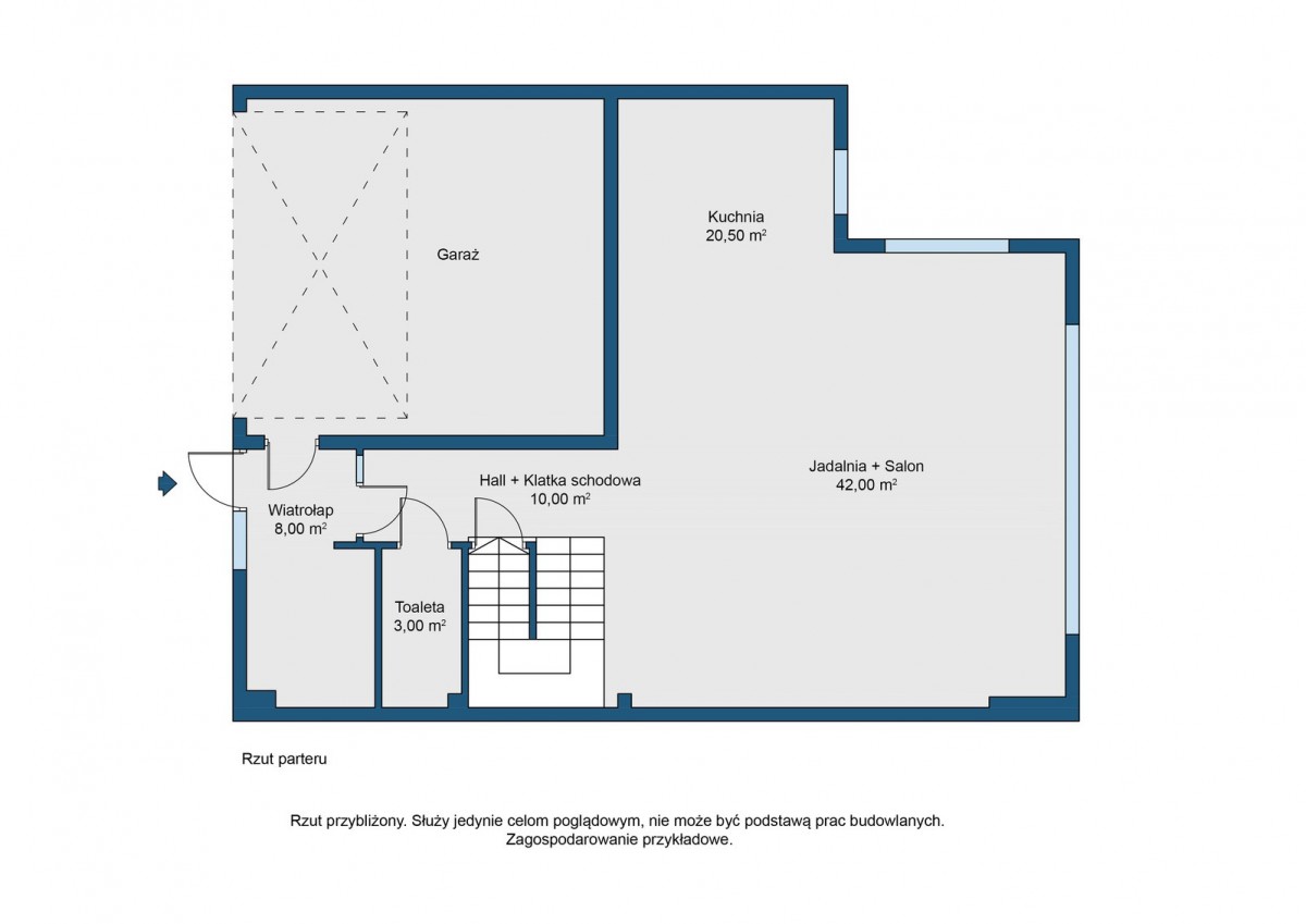
Parter:
Reprezentacyjna strefa dzienna (salon z jadalnią i kuchnią – 62 m²), kuchnia z wyjściem na taras, garaż na dwa auta, pomieszczenie gospodarcze.
Piętro:
Master bedroom z prywatną łazienką i garderobą oraz wyjściem na taras rekreacyjny (ok. 30 m²), dwie sypialnie, łazienka główna, pralnia.
Poddasze:
Gabinet, łazienka oraz otwarta, wielofunkcyjna przestrzeń – idealna jako pokój rekreacyjny, studio lub dodatkowa sypialnia.
KOMFORT PARKOWANIA
Garaż dwustanowiskowy oraz dodatkowe miejsce na podjeździe.
LOKALIZACJA PREMIUM
To jedno z niewielu miejsc w Warszawie, które łączy tak wiele atutów – cisza, spokój, naturalne otoczenie i jednocześnie pełna miejska infrastruktura na wyciągnięcie ręki.
– W otoczeniu najlepszych szkół i przedszkoli
– W sąsiedztwie Rezerwatu Skarpa Ursynowska – bezpośredni kontakt z naturą
– Spacerowa odległość do sklepów, restauracji, kawiarni, szkół i punktów usługowych
– 8 minut pieszo do komunikacji miejskiej – tramwaje i autobusy (w tym linia tramwajowa do Wilanowa)
– 7 minut jazdy do stacji metra Wilanowska
– 15 minut do centrum Warszawy
Dzięki gotowemu projektowi wykończenia i możliwości realizacji „pod klucz”, Twój nowy dom może być gotowy już za kilka miesięcy.
O NIERUCHOMOŚCI
Nowoczesny dom w Błoniach Wilanowskich – ul.Mango – 280 m² w stanie deweloperskim z możliwością wykończenia wnętrz pod klucz.
Wyjątkowy segment skrajny w prestiżowej lokalizacji, sprzedawany z gotowym projektem wnętrz i ogrodu (możliwość wykończenia domu pod pod klucz, renomowani wykonawcy z nadzorem architektonicznym).
Dom wyróżnia się wysoką jakością – gruntowa pompa ciepła, rekuperacja, ogrzewanie podłogowe w całym budynku, duże aluminiowe okno HS i elewacja z naturalnego drewna.
Funkcjonalny układ z master suite, ogrodem, tarasem i garażem na dwa auta dopełnia całości. Idealne połączenie designu, komfortu i nowoczesnych technologii.
UKŁAD POMIESZCZEŃ
Parter:
Reprezentacyjna strefa dzienna (salon z jadalnią i kuchnią – 62 m²), kuchnia z wyjściem na taras, garaż na dwa auta, pomieszczenie gospodarcze.
Piętro:
Master bedroom z prywatną łazienką i garderobą oraz wyjściem na taras rekreacyjny (ok. 30 m²), dwie sypialnie, łazienka główna, pralnia.
Poddasze:
Gabinet, łazienka oraz otwarta, wielofunkcyjna przestrzeń – idealna jako pokój rekreacyjny, studio lub dodatkowa sypialnia.
KOMFORT PARKOWANIA
Garaż dwustanowiskowy oraz dodatkowe miejsce na podjeździe.
LOKALIZACJA PREMIUM
To jedno z niewielu miejsc w Warszawie, które łączy tak wiele atutów – cisza, spokój, naturalne otoczenie i jednocześnie pełna miejska infrastruktura na wyciągnięcie ręki.
– W otoczeniu najlepszych szkół i przedszkoli
– W sąsiedztwie Rezerwatu Skarpa Ursynowska – bezpośredni kontakt z naturą
– Spacerowa odległość do sklepów, restauracji, kawiarni, szkół i punktów usługowych
– 8 minut pieszo do komunikacji miejskiej – tramwaje i autobusy (w tym linia tramwajowa do Wilanowa)
– 7 minut jazdy do stacji metra Wilanowska
– 15 minut do centrum Warszawy
Dzięki gotowemu projektowi wykończenia i możliwości realizacji „pod klucz”, Twój nowy dom może być gotowy już za kilka miesięcy.
Więcej informacji:
Typ transakcji: Sprzedaż
Powierzchnia: 279.6 m2
Cena: 4200000 zł
Liczba pokoi: 6
Piętro: 0 z 2
Strony świata:
Stan prawny: własność
Rok budowy: 2025
Wysokość apartamentu: 290 cm
Czynsz: 0 zł
Winda: NIE
Rodzaj kuchni: Z oknem otwarta na salon
Jasna kuchnia: TAK
Dodatkowe powierzchnie: Taras
Rynek: wtórny
DOKŁADNA LOKALIZACJA
Kraj: Polska
Województwo: MAZOWIECKIE
Lokalizacja: Warszawa Wilanów Błonia Wilanowskie
Ulica: Mango
MEDIAGaz: NIE
Woda: NIE
Kanalizacja: NIE
WSPÓŁPRACA
Oferta biura współpracującego. Zadzwoń i dowiedz się, czy za tę ofertę pobieramy prowizję.
DOKŁADNA LOKALIZACJA
MEDIA
WSPÓŁPRACA

DODATKOWE
POWIERZCHNIE
Loggia: NIE
Balkon: NIE
Taras: TAK
Piwnica: NIE
Schowek: TAK
Komórka: NIE
Antresola: NIE
Parking: TAK
Garaż podziemny: NIE
Garaż: TAK
Ogród: TAK

W POBLIŻU
NIERUCHOMOŚCI

BEZPIECZEŃSTWO
BUDYNKU



Nieruchomość: dom (segment skrajny)
Typ transakcji: Sprzedaż
Ulica: Mango
Powierzchnia: 280 m²
Cena: 4 200 000 zł













