Opis nieruchomości:
Na sprzedaż nieruchomość o przeznaczeniu usługowym – dwie kondygnacje ( parter, podpiwniczenie/garaż podziemny) w wolnostojącym budynku wybudowanym w 2020r.
Nieruchomość (dwie kondygnacje) o łącznej powierzchni 325,39 m².
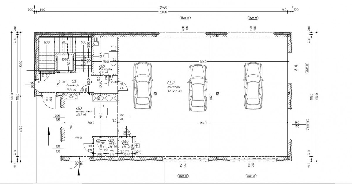
Parter – 235,39m2
Kondygnacja podziemna – 90 m2
Do tego 6 miejsc na parkingu zewnętrznym .
Teren ogrodzony, z ładnym widokiem na las.
✅Idealne do przerobienia na hostel lub dowolny biznes (pokoje z antresolami – patrz wysokość lokalu).
✅ estetyczny budynek na uboczu, na górze nad lokalem kilkanaście lokali mieszkalnych
✅ aktualnie brak konieczności uzgodnień ze wspólnotą mieszkaniową (zarząd nieruchomością wspólną)
✅forma prawna – udział z notarialnym podziałem do wyłącznego korzystania z przedmiotowego lokalu
✅ wysokość kondygnacji – parter 4 m, piwnica/garaż 3 m
✅ grube stropy i posadzki z udźwigiem wystarczającym np. dla salonu samochodowego albo przychodni (tomograf)
✅aktualnie lokal podzielony ściankami działowymi i częściowo wynajęty na różne biznesy z generowanym przychodem około 10 000 zł/m-c
✅powierzchnia niezagospodarowana/niewynajęta – około 90 m²
umowy z najemcami na terminy nie dłuższe niż rok – zawarte bez formy notarialnej, niektóre z 777 k.p.c. co do płatności i opróżnienia
Nieruchomość sprzedawana w formie udziału z notarialnym podziałem do korzystania (brak możliwości sfinansowania kredytem).
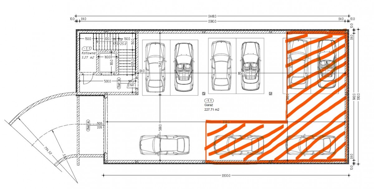
Powierzchnia na kondygnacji podziemnej zaznaczona na pomarańczowo.
Roczny podatek: około 5400 zł
Miesięczny czynsz administracyjny bez mediów – około 450 zł, z ogrzewaniem około 1000 zł.
Media: Prąd, Gaz, woda z ujęcia własnego, szambo. Kanalizacja i podłączenie do sieci miejskiej w trakcie.
Lokalizacja: Warszawa Wesoła – ul. Piłsudskiego 6
W okolicy (ok. 200-300 m) pasaż usług, dyskonty , klub fitness , stacja paliw , gastronomia sieciowa .
Lokal położony przy ruchliwej drodze lokalnej
Na sprzedaż nieruchomość o przeznaczeniu usługowym – dwie kondygnacje ( parter, podpiwniczenie/garaż podziemny) w wolnostojącym budynku wybudowanym w 2020r.
Nieruchomość (dwie kondygnacje) o łącznej powierzchni 325,39 m².
Parter – 235,39m2
Kondygnacja podziemna – 90 m2
Do tego 6 miejsc na parkingu zewnętrznym .
Teren ogrodzony, z ładnym widokiem na las.
✅Idealne do przerobienia na hostel lub dowolny biznes (pokoje z antresolami – patrz wysokość lokalu).
✅ estetyczny budynek na uboczu, na górze nad lokalem kilkanaście lokali mieszkalnych
✅ aktualnie brak konieczności uzgodnień ze wspólnotą mieszkaniową (zarząd nieruchomością wspólną)
✅forma prawna – udział z notarialnym podziałem do wyłącznego korzystania z przedmiotowego lokalu
✅ wysokość kondygnacji – parter 4 m, piwnica/garaż 3 m
✅ grube stropy i posadzki z udźwigiem wystarczającym np. dla salonu samochodowego albo przychodni (tomograf)
✅aktualnie lokal podzielony ściankami działowymi i częściowo wynajęty na różne biznesy z generowanym przychodem około 10 000 zł/m-c
✅powierzchnia niezagospodarowana/niewynajęta – około 90 m²
umowy z najemcami na terminy nie dłuższe niż rok – zawarte bez formy notarialnej, niektóre z 777 k.p.c. co do płatności i opróżnienia
Nieruchomość sprzedawana w formie udziału z notarialnym podziałem do korzystania (brak możliwości sfinansowania kredytem).
Powierzchnia na kondygnacji podziemnej zaznaczona na pomarańczowo.
Roczny podatek: około 5400 zł
Miesięczny czynsz administracyjny bez mediów – około 450 zł, z ogrzewaniem około 1000 zł.
Media: Prąd, Gaz, woda z ujęcia własnego, szambo. Kanalizacja i podłączenie do sieci miejskiej w trakcie.
Lokalizacja: Warszawa Wesoła – ul. Piłsudskiego 6
W okolicy (ok. 200-300 m) pasaż usług, dyskonty , klub fitness , stacja paliw , gastronomia sieciowa .
Lokal położony przy ruchliwej drodze lokalnej
Więcej informacji:
Typ transakcji: Sprzedaż
Powierzchnia: 325.39 m2
Cena: 2159897 zł
Liczba pokoi: 6
Piętro: 0 z 2
Strony świata:
Stan prawny: udział
Rok budowy: 2020
Wysokość apartamentu: 400 cm
Czynsz: 0 zł
Winda: NIE
Rodzaj kuchni: Brak danych
Jasna kuchnia: NIE
Dodatkowe powierzchnie:
Rynek: wtórny
DOKŁADNA LOKALIZACJA
Kraj: Polska
Województwo: MAZOWIECKIE
Lokalizacja: Warszawa Wesoła
Ulica: Aleja marsz. Józefa Piłsudskiego
MEDIAGaz: NIE
Woda: NIE
Kanalizacja: NIE
WSPÓŁPRACA
Oferta biura współpracującego. Zadzwoń i dowiedz się, czy za tę ofertę pobieramy prowizję.
DOKŁADNA LOKALIZACJA
MEDIA
WSPÓŁPRACA

DODATKOWE
POWIERZCHNIE
Loggia: NIE
Balkon: NIE
Taras: NIE
Piwnica: NIE
Schowek: NIE
Komórka: NIE
Antresola: NIE
Parking: NIE
Garaż podziemny: NIE
Garaż: NIE
Ogród: NIE

W POBLIŻU
NIERUCHOMOŚCI

BEZPIECZEŃSTWO
BUDYNKU



Nieruchomość: lokal handlowy/usługowy
Typ transakcji: Sprzedaż
Ulica: Aleja marsz. Józefa Piłsudskiego
Powierzchnia: 326 m²
Cena: 2 159 897 zł













