Opis nieruchomości:
86 m2 na Porcie Praskim do własnej aranżacji I 4 sypialnie
Zapraszamy do zapoznania się z ofertą wyjątkowego mieszkania o powierzchni 86,18 m², położonego w samym sercu Portu Praskiego – jednej z najbardziej prestiżowych i nowoczesnych inwestycji w Warszawie.
Dlaczego to mieszkanie jest wyjątkowe?
Atuty życia w Porcie Praskim
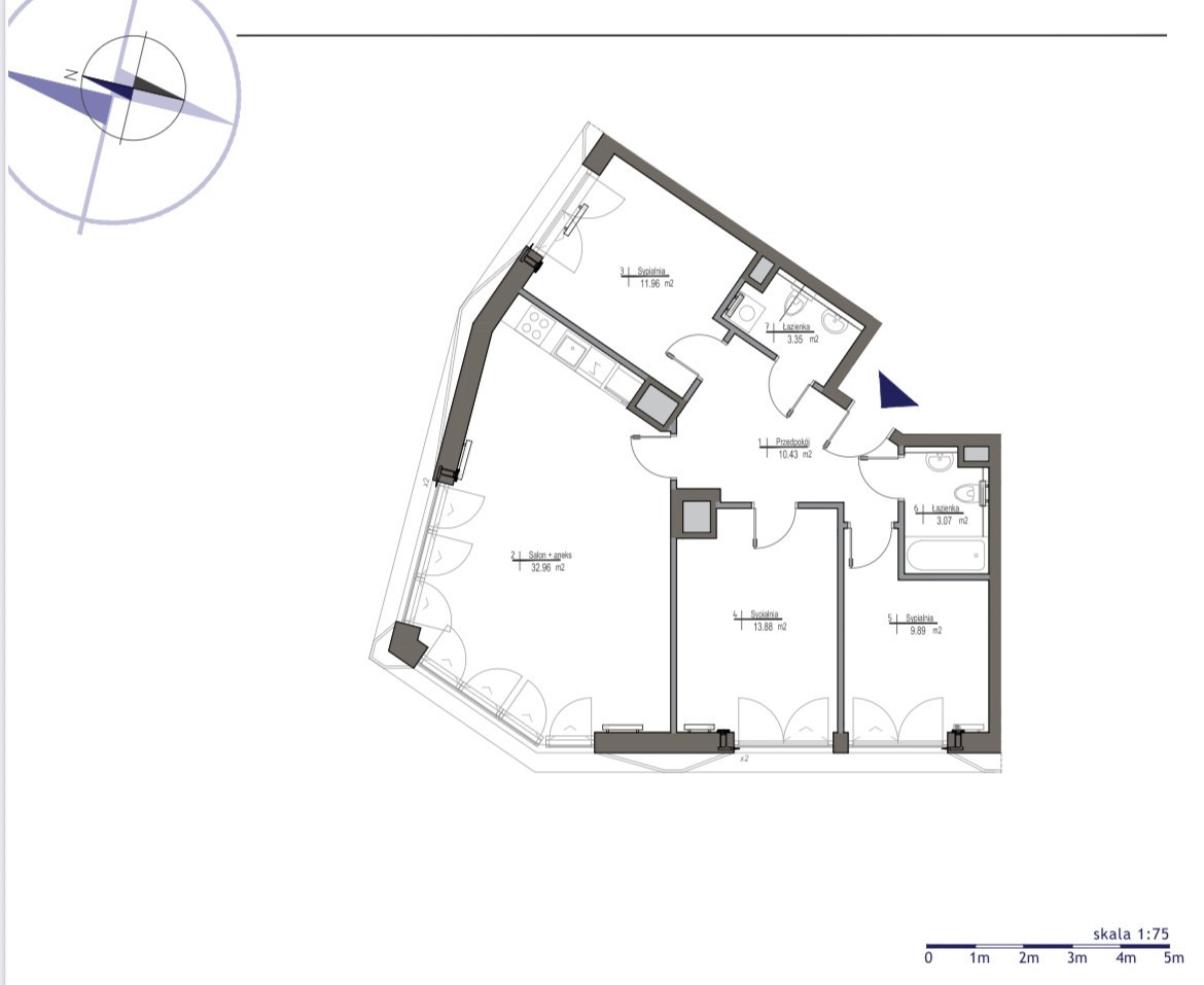
Dane szczegółowe:
– powierzchnia: 86,18 m²,
– przedpokój: ok. 10,5 m2,
– czynsz – 946,10 zł/m-c,
– opłata za użytkowanie garażu – 369,84/ m-c,
– salon + aneks kuchenny – ok. 33 m2,
– sypialnia – ok. 12m2,
– sypialnia – ok.14 m2,
– sypialnia – ok. 10 m2,
– łazienka – 3,97 m2,
– łazienka – 3,35 m2.
Miejsce postojowe z boksem rowerowym plus komórka lokatorska dodatkowo płatne – 200 000 zł.
Zapraszam na prezentację!
86 m2 na Porcie Praskim do własnej aranżacji I 4 sypialnie
Zapraszamy do zapoznania się z ofertą wyjątkowego mieszkania o powierzchni 86,18 m², położonego w samym sercu Portu Praskiego – jednej z najbardziej prestiżowych i nowoczesnych inwestycji w Warszawie.
Dlaczego to mieszkanie jest wyjątkowe?
- Światło i przestrzeń – głównym atutem apartamentu są duże okna, które wypełniają wnętrze naturalnym światłem i sprawiają, że przestrzeń jest jasna i przyjemna o każdej porze dnia.
- Przemyślany układ – salon z aneksem kuchennym, trzy sypialnie, łazienka, toaleta i przedpokój z miejscem na zabudowę tworzą wygodne i funkcjonalne wnętrze.
- Dodatkowa przestrzeń – do mieszkania przynależy miejsce postojowe w garażu podziemnym z boksem na rower oraz komórka lokatorska.
- Możliwość indywidualnego wykończenia – istnieje możliwość skorzystania z projektu aranżacji wnętrz, przygotowanego przez renomowaną pracownię architektoniczną Mikołajska Studio, co znacznie ułatwi proces urządzenia mieszkania.
Atuty życia w Porcie Praskim
- Port Praski to miejsce, które łączy bliskość centrum Warszawy z klimatem nowoczesnej, nadwiślańskiej dzielnicy.
- Komunikacja – kilka minut do metra, tramwajów i autobusów, które szybko łączą Pragę z resztą miasta.
- Edukacja i opieka – w okolicy znajdują się szkoły, przedszkola oraz przychodnie.
- Tereny zielone i rekreacja – bulwary wiślane, ścieżki rowerowe, parki i place zabaw – idealne miejsce na spacer, sport czy weekendowy odpoczynek.
- Codzienna wygoda – w sąsiedztwie mieszkania działają sklepy, restauracje i kawiarnie, dzięki czemu wszystko jest na wyciągnięcie ręki.
Dane szczegółowe:
– powierzchnia: 86,18 m²,
– przedpokój: ok. 10,5 m2,
– czynsz – 946,10 zł/m-c,
– opłata za użytkowanie garażu – 369,84/ m-c,
– salon + aneks kuchenny – ok. 33 m2,
– sypialnia – ok. 12m2,
– sypialnia – ok.14 m2,
– sypialnia – ok. 10 m2,
– łazienka – 3,97 m2,
– łazienka – 3,35 m2.
Miejsce postojowe z boksem rowerowym plus komórka lokatorska dodatkowo płatne – 200 000 zł.
Zapraszam na prezentację!
Więcej informacji:
Typ transakcji: Sprzedaż
Powierzchnia: 86.18 m2
Cena: 2550000 zł
Liczba pokoi: 4
Piętro: 5 z 7
Strony świata:
Stan prawny: własność
Rok budowy: 2024
Wysokość apartamentu: 270 cm
Czynsz: 1315 zł
Winda: TAK
Rodzaj kuchni: Z oknem otwarta na salon
Jasna kuchnia: TAK
Dodatkowe powierzchnie:
Rynek: wtórny
DOKŁADNA LOKALIZACJA
Kraj: Polska
Województwo: MAZOWIECKIE
Lokalizacja: Warszawa Praga-Północ
Ulica: Józefa Sierakowskiego
MEDIAGaz: NIE
Woda: TAK
Kanalizacja: TAK
WSPÓŁPRACA
Oferta biura współpracującego. Zadzwoń i dowiedz się, czy za tę ofertę pobieramy prowizję.
DOKŁADNA LOKALIZACJA
MEDIA
WSPÓŁPRACA

DODATKOWE
POWIERZCHNIE
Loggia: NIE
Balkon: NIE
Taras: NIE
Piwnica: NIE
Schowek: NIE
Komórka: TAK
Antresola: NIE
Parking: NIE
Garaż podziemny: TAK
Garaż: NIE
Ogród: NIE

W POBLIŻU
NIERUCHOMOŚCI

BEZPIECZEŃSTWO
BUDYNKU
Intercom
Wideofon 


Nieruchomość: mieszkanie
Typ transakcji: Sprzedaż
Ulica: Józefa Sierakowskiego
Powierzchnia: 87 m²
Cena: 2 550 000 zł


















