Opis nieruchomości:
Super oferta dla osób ceniących sobie spokój i przyrodę, z jednoczesnym bliskim dostępem do infrastruktury miejskiej.
Świetne, publiczne przedszkole znajduje się kilkanaście minut piechotą od nieruchomości, dojazd do szkoły autobusem szkolnym.
Na sprzedaż piękna działka zabudowana wolnostojącym, ENERGOOSZCZĘDNYM, nowoczesnym budynkiem mieszkalnym zaprojektowanym wg indywidualnego projektu, wybudowanym z materiałów o najwyższych parametrach energooszczędności.
Dom o konstrukcji szkieletowej.
Nieruchomość znajduje się przy drodze wewnętrznej odchodzącej od ulicy Słonecznej w Żółwinie, 2,5 km od centrum Podkowy Leśnej, 30 km od centrum Warszawy.
Dom wg indywidualnego projektu.
Powierzchnia całkowita budynku 181m2, powierzchnia użytkowa 167m2, kubatura 469m3.
Działka ma 2 bramki wejściowe, w tym 1 wejście bezpośrednio do lasu.
Budynek jest ekonomiczny w użytkowaniu – panele fotowoltaiczne, pompa ciepła, wentylacja mechaniczna z rekuperacją. Panele i pompa ciepła zapewnia bardzo niskie/zerowe koszty ogrzewania domu i podgrzania wody.
Umowa na fotowoltaikę podpisana wg starych zasad – duża nadprodukcja energii elektrycznej – można podłączyć ładowarkę do samochodu elektrycznego.
Własna studnia i szambo.
W pobliżu jest świetne państwowe przedszkole (w odległości ok. 1 km), szkoła, nowoczesny Orlik (boisko, korty, jak również stajnia, oraz tory pumptrack.
ROZKŁAD:
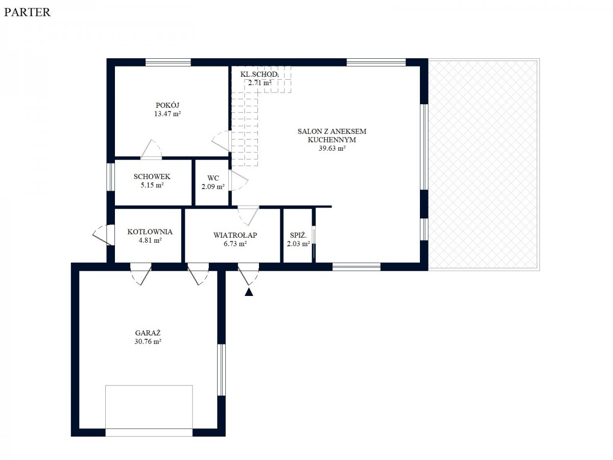
PARTER:
wiatrołap – 7m2
salon z aneksem kuchennym – 42m2
spiżarnia – 2m2
wc – 2m2
pokój – 13m2
schowek (obecnie gabinet) – 5m2 – (można przerobić na łazienkę – w podłodze są podłączenia)
kotłownia – 5m2
garaż – 31m2
klatka schodowa – 3m2
PIĘTRO
klatka schodowa – 2m2
hol – 6m2
sypialnia – 15m2
sypialnia – 13m2
łazienka – 4 m2
sypialnia główna z widokiem na ogród – 21m2
łazienka (obecnie garderoba przy sypialni głównej) – 4m2 – można wrócić do pierwotnej koncepcji, gdyż w podłogach znajdują się wszystkie podłączenia
garderoba – 4m2 (obecnie pralnia)
Schody – dąb barwiony.
Na podłogach panele winylowe (odporne na zarysowania).
We wszystkich oknach rolety zewnętrzne.
Dojazd do nieruchomości drogą wewnętrzną. W cenie nieruchomości – udziały w drodze dojazdowej.
Nie ma możliwości zabudowania dalszego działki – wg MPZP część działki znajduje się na terenach przeznaczonych na tereny zielone.
Zapraszam!
Super oferta dla osób ceniących sobie spokój i przyrodę, z jednoczesnym bliskim dostępem do infrastruktury miejskiej.
Świetne, publiczne przedszkole znajduje się kilkanaście minut piechotą od nieruchomości, dojazd do szkoły autobusem szkolnym.
Na sprzedaż piękna działka zabudowana wolnostojącym, ENERGOOSZCZĘDNYM, nowoczesnym budynkiem mieszkalnym zaprojektowanym wg indywidualnego projektu, wybudowanym z materiałów o najwyższych parametrach energooszczędności.
Dom o konstrukcji szkieletowej.
Nieruchomość znajduje się przy drodze wewnętrznej odchodzącej od ulicy Słonecznej w Żółwinie, 2,5 km od centrum Podkowy Leśnej, 30 km od centrum Warszawy.
Dom wg indywidualnego projektu.
Powierzchnia całkowita budynku 181m2, powierzchnia użytkowa 167m2, kubatura 469m3.
Działka ma 2 bramki wejściowe, w tym 1 wejście bezpośrednio do lasu.
Budynek jest ekonomiczny w użytkowaniu – panele fotowoltaiczne, pompa ciepła, wentylacja mechaniczna z rekuperacją. Panele i pompa ciepła zapewnia bardzo niskie/zerowe koszty ogrzewania domu i podgrzania wody.
Umowa na fotowoltaikę podpisana wg starych zasad – duża nadprodukcja energii elektrycznej – można podłączyć ładowarkę do samochodu elektrycznego.
Własna studnia i szambo.
W pobliżu jest świetne państwowe przedszkole (w odległości ok. 1 km), szkoła, nowoczesny Orlik (boisko, korty, jak również stajnia, oraz tory pumptrack.
ROZKŁAD:
PARTER:
wiatrołap – 7m2
salon z aneksem kuchennym – 42m2
spiżarnia – 2m2
wc – 2m2
pokój – 13m2
schowek (obecnie gabinet) – 5m2 – (można przerobić na łazienkę – w podłodze są podłączenia)
kotłownia – 5m2
garaż – 31m2
klatka schodowa – 3m2
PIĘTRO
klatka schodowa – 2m2
hol – 6m2
sypialnia – 15m2
sypialnia – 13m2
łazienka – 4 m2
sypialnia główna z widokiem na ogród – 21m2
łazienka (obecnie garderoba przy sypialni głównej) – 4m2 – można wrócić do pierwotnej koncepcji, gdyż w podłogach znajdują się wszystkie podłączenia
garderoba – 4m2 (obecnie pralnia)
Schody – dąb barwiony.
Na podłogach panele winylowe (odporne na zarysowania).
We wszystkich oknach rolety zewnętrzne.
Dojazd do nieruchomości drogą wewnętrzną. W cenie nieruchomości – udziały w drodze dojazdowej.
Nie ma możliwości zabudowania dalszego działki – wg MPZP część działki znajduje się na terenach przeznaczonych na tereny zielone.
Zapraszam!
Więcej informacji:
Typ transakcji: Sprzedaż
Powierzchnia: 181 m2
Cena: 1890000 zł
Liczba pokoi: 5
Piętro: 0 z 2
Strony świata:
Stan prawny: własność
Rok budowy: 2025
Wysokość apartamentu: brak danych cm
Czynsz: 0 zł
Winda: NIE
Rodzaj kuchni: Z oknem otwarta na salon
Jasna kuchnia: TAK
Dodatkowe powierzchnie: Taras
Rynek: wtórny
DOKŁADNA LOKALIZACJA
Kraj: Polska
Województwo: MAZOWIECKIE
Lokalizacja: Żółwin
Ulica: Słoneczna
MEDIAGaz: NIE
Woda: NIE
Kanalizacja: NIE
WSPÓŁPRACA
Oferta biura współpracującego. Zadzwoń i dowiedz się, czy za tę ofertę pobieramy prowizję.
DOKŁADNA LOKALIZACJA
MEDIA
WSPÓŁPRACA

DODATKOWE
POWIERZCHNIE
Loggia: NIE
Balkon: NIE
Taras: TAK
Piwnica: NIE
Schowek: NIE
Komórka: NIE
Antresola: NIE
Parking: TAK
Garaż podziemny: NIE
Garaż: TAK
Ogród: TAK

W POBLIŻU
NIERUCHOMOŚCI

BEZPIECZEŃSTWO
BUDYNKU
Drzwi antywłamaniowe
Żaluzje 


Nieruchomość: dom (wolnostojący)
Typ transakcji: Sprzedaż
Ulica: Słoneczna
Powierzchnia: 181 m²
Cena: 1 890 000 zł






























