Na sprzedaż: 4-pokojowe, 86 m², Warszawa Ursus

Sprzedaż – mieszkanie – Warszawa Ursus – Dzieci Warszawy

Toggle Agent Data

Dane agenta

  • Imię i nazwisko: Balicki
  • Telefon: +48 609 080 773
  • Mail: marcin.balicki@remax-polska.pl
Podstawowe dane:
  Nieruchomość: mieszkanie
  Rynek: wtórny
  Typ transakcji: Sprzedaż
     Lokalizacja: Warszawa Ursus
    Ulica: Dzieci Warszawy
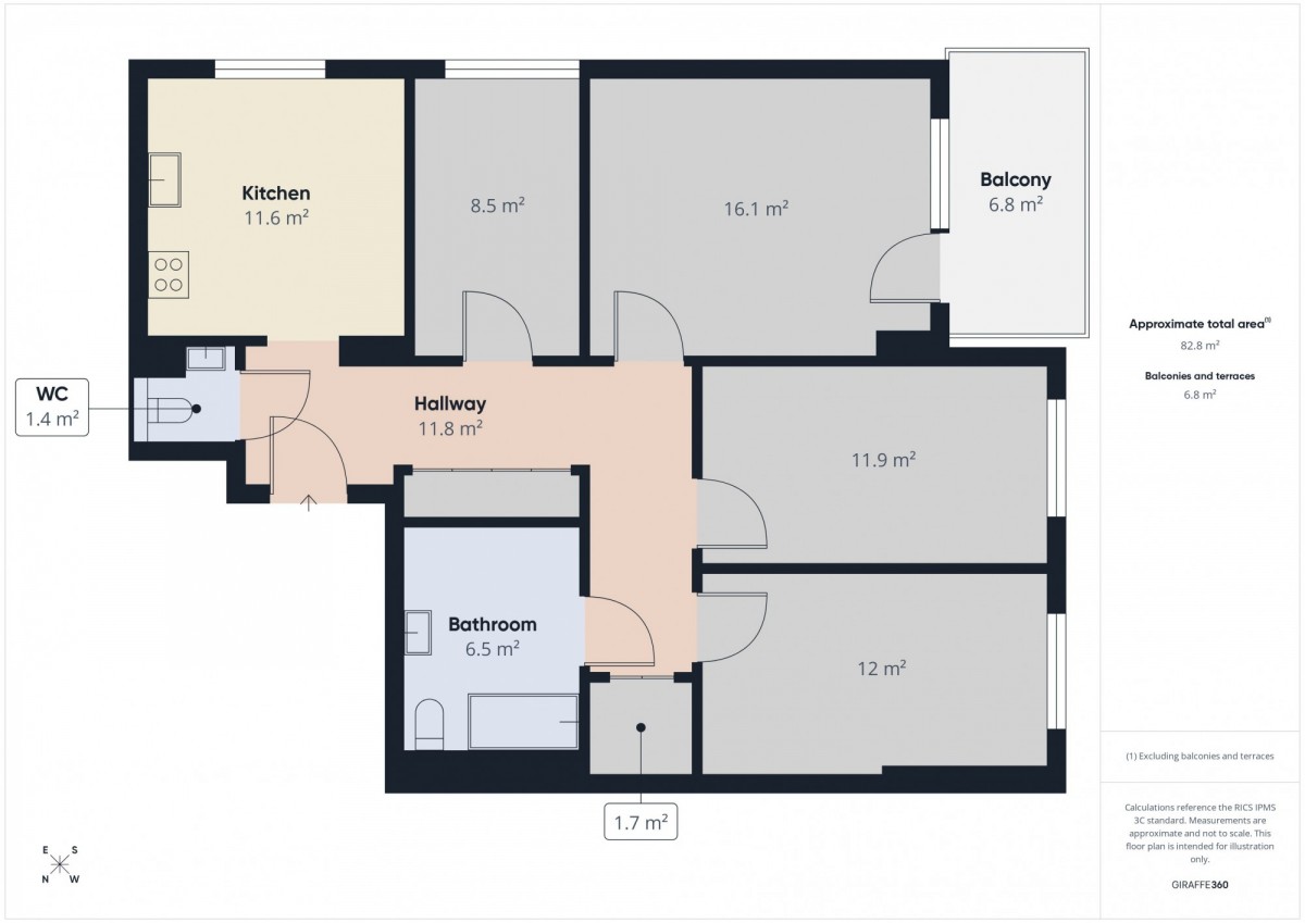
   Powierzchnia: 87 m²
     Cena: 1 214 000 zł



Opis nieruchomości:

LOKALIZACJA – Ursus, ul. Dzieci Warszawy 29

Na sprzedaż 4-pokojowe, funkcjonalne mieszkanie o powierzchni 86,7 m², zlokalizowane w Warszawie, Ursus, przy ul. Dzieci Warszawy 29.

* Przystanki autobusowe (517, 129, 191) – przy bloku
* Blisko tereny rekreacyjne: Park Achera oraz Stawy Cietrzewia
* W sąsiedztwie sklepy, punkty usługowe, restauracje i centrum handlowe Factory Ursus, Centrum Skorosze
* Bardzo dobra infrastruktura dla rodzin – szkoły, przedszkola, place zabaw

Lokalizacja zapewnia szybki dojazd do centrum Warszawy i dostęp do pełnej miejskiej infrastruktury.

OPIS MIESZKANIA – 86,7 m², 4 pokoje, oddzielna kuchnia, garderoba

Mieszkanie jest funkcjonalne, jasne i po odświeżeniu. Znajduje się w zadbanym budynku przy ul. Dzieci Warszawy 29.
W skład mieszkania wchodzą:

* Przestronny salon
* Oddzielna, widna kuchnia
* Trzy sypialnie (jedna wydzielona z salonu)
* Garderoba
* Łazienka po generalnym remoncie
* Oddzielna toaleta
* Przedpokój z dużą, pojemną szafą
* Balkon

Stan techniczny po odświeżeniu

* Drewniane podłogi w pokojach zostały świeżo wycyklinowane
* Mieszkanie zostało odmalowane
* Łazienka wykonana od nowa, w nowoczesnym standardzie

Układ idealny dla rodziny, osób pracujących zdalnie lub potrzebujących dodatkowej przestrzeni.

DODATKOWE INFORMACJE

* Cena mieszkania: 1 214 000 zł
* Miejsce postojowe w garażu podziemnym: 39 000 zł

Zapraszam na prezentację
Więcej informacji:
  • Typ transakcji: Sprzedaż
  • Powierzchnia: 86.7 m2
  • Cena: 1214000 zł
  • Liczba pokoi: 4
  • Piętro: 4 z 6
  • Strony świata:
  • Stan prawny: własność
  • Rok budowy: 2004
  • Wysokość apartamentu: brak danych cm
  • Czynsz: 0 zł
  • Winda: NIE
  • Rodzaj kuchni: Zamykana z oknem
  • Jasna kuchnia: TAK
  • Dodatkowe powierzchnie: Balkon
  • Rynek: wtórny

  • DOKŁADNA LOKALIZACJA
  • Kraj: Polska
  • Województwo: MAZOWIECKIE
  • Lokalizacja: Warszawa Ursus
  • Ulica: Dzieci Warszawy

  • MEDIA
  • Gaz: NIE
  • Woda: NIE
  • Kanalizacja: NIE

  • WSPÓŁPRACA
  • Oferta biura współpracującego. Zadzwoń i dowiedz się, czy za tę ofertę pobieramy prowizję.

  • DODATKOWE
    POWIERZCHNIE

    Loggia: NIE
    Balkon: TAK
    Taras: NIE
    Piwnica: NIE
    Schowek: NIE
    Komórka: NIE
    Antresola: NIE
    Parking: NIE
    Garaż podziemny: TAK
    Garaż: NIE
    Ogród: NIE

    W POBLIŻU
    NIERUCHOMOŚCI

    BEZPIECZEŃSTWO
    BUDYNKU

    KOMUNIKACJA
    DO NIERUCHOMOŚCI


    Telefon: +48 609 080 773
    Mail: marcin.balicki@remax-polska.pl


    Potrzebujesz innych usług od
    Wymarzony Kwadrat?


    Unikalny kod oferty: AA- URS-350423